2026/01/31 00:31
🏠貸アパート情報🏠長崎県諫早市飯盛町開1718-1「Kiitos(キートス)」1LDKの入居者募集を開始致しました!!
🏠貸アパート情報🏠
長崎県諫早市飯盛町開1718-1「Kiitos(キートス)」1LDKの入居者募集を開始致しました!!
駐車場2台契約可能!
築浅物件、1~2名様の入居をおススメいたします。
ペット飼育可能物件です!!(小型犬、猫可能)
🏠物件情報🏠
【物件種目】 貸アパート
【建物名】 Kiitos(キートス)
【所在地】 長崎県諫早市飯盛町開1718-1
【交通】 「コミュニティ会館前」バス停 徒歩1分
【間取り】 1LDK(洋5.5 LDK11)
【専有面積】 36.77㎡
【築年月】 2022年1月
【建物構造】 木造2階建て
【家賃】 55,000円/月
【共益費】 なし
【駐車場】 1台目3,000円/月、2台目2,000円/月
【安心サポート】 880円/月
【保険】 加入要/2年間 20,000円
【加入要】 初回:総賃料50%、更新料なし(連帯保証人あり)
初回:総賃料100%、更新料あり(連帯保証人なし)
【ペット飼育】 小型犬、猫可能
🏠設備🏠
バス・トイレ別/オートバス/シャワー/追焚機能/浴室に窓あり/トイレ/温水洗浄便座/洗面所/シャワー付洗面化粧台/3口コンロ/IHクッキングヒーター/カウンターキッチン/システムキッチン/グリル/収納スペース/クローゼット/シューズボックス/照明器具/ダウンライト/室内洗濯機置場/複層ガラス/フローリング/クッションフロア/エアコン2台/インターネット使用料無料/モニタ付インターホン/ディンプルキー/バルコニー/オール電化
☆☆☆☆☆☆☆☆☆☆☆☆☆☆☆☆☆☆☆☆☆☆☆☆☆☆☆☆☆☆☆☆☆☆☆☆☆☆☆☆☆☆☆☆
住吉不動産株式会社では、
売却不動産の募集及び不動産の買取り・賃貸物件管理・空家管理を行っております‼️😊
空き家、空き地、居住中戸建、駐車場、マンション、アパート等不動産であれば何でもOKです❗
査定は無料で行えますのでお気軽にご相談ください‼️😊
長崎県内に限らず、県外の不動産の売却相談も受け付けております!!
県外のご実家又はご所有されている不動産の売却をお考えなど、ございましたらお気軽にご相談ください。
住吉不動産株式会社
〒852-8154
長崎県長崎市住吉町5番3号1階
TEL : 095-807-6835
FAX : 095-807-2339
メール : info@sumiyoshiestate.com
ホームページ : https://sumiyoshiestate.com
※長崎市浜口町のデジタルサイネージにて広告主募集中!!(^^)/
年契約、月々22,000円~
お気軽にお問い合わせください。
2026/01/30 23:49
🏠売土地情報🏠長崎県長崎市風頭町の土地の販売を開始致しました!!(^^♪
🏠売土地情報🏠
長崎県長崎市風頭町の土地の販売を開始いたしました!!(^^♪
建築条件なし!!車道より段下となりますが、車庫造成等を含め理想の住宅プランのご提案も可能です!!
もちろん、お好きなハウスメーカーでの建築も可能です!!
プランのご提案も無料で行っておりますので、ぜひ一度ご相談ください!!
🏠物件情報🏠
【物件種目】 売地
【所在地】 長崎県長崎市風頭町
【交通】 「風頭町」バス停 徒歩4分
【価格】 650万円(14.23万円/坪)
【土地面積】 公簿151.03㎡(45.68坪)
【用途地域】 1種低層地域
【建蔽率】 50%
【容積率】 100%
【土地権利】 所有権
【都市計画】 市街化区域
【地目】 宅地
【現況】 更地
前面道路
☆☆☆☆☆☆☆☆☆☆☆☆☆☆☆☆☆☆☆☆☆☆☆☆☆☆☆☆☆☆☆☆☆☆☆☆☆☆☆☆☆☆☆☆
住吉不動産株式会社では、
売却不動産の募集及び不動産の買取り・賃貸物件管理・空家管理を行っております‼️😊
空き家、空き地、居住中戸建、駐車場、マンション、アパート等不動産であれば何でもOKです❗
査定は無料で行えますのでお気軽にご相談ください‼️😊
長崎県内に限らず、県外の不動産の売却相談も受け付けております!!
県外のご実家又はご所有されている不動産の売却をお考えなど、ございましたらお気軽にご相談ください。
住吉不動産株式会社
〒852-8154
長崎県長崎市住吉町5番3号1階
TEL : 095-807-6835
FAX : 095-807-2339
メール : info@sumiyoshiestate.com
ホームページ : https://sumiyoshiestate.com
※長崎市浜口町のデジタルサイネージにて広告主募集中!!(^^)/
年契約、月々22,000円~
お気軽にお問い合わせください。
2026/01/30 23:02
🏠売マンション🏠長崎県長崎市住吉町「クレアール住吉」3LDK 2,590万円の販売を開始致しました。
🏠売マンション🏠
長崎県長崎市住吉町「クレアール住吉」3LDK 2,590万円の販売を開始致しました。
買い物・教育・病院・金融機関すべて徒歩圏内で完結する立地!!
室内フルリフォーム済の為、すぐ入居できます!!
リフォーム個所・・・・水回り:2025年5月 キッチン、浴室、トイレ、洗面所
内装 :2025年5月 内装前面(床、壁、天井、建具)
🏠物件情報🏠
【物件種別】 売マンション
【建物名】 クレアール住吉
【所在地】 長崎県長崎市住吉町3番9号
【交通】 長崎電軌本線「昭和町通」電停 徒歩2分
JR長崎本線「西浦上」駅 徒歩7分
【価格】 2,590万円
【管理料】 10,800円/月
【修繕積立金】 6,050円/月
【CATV代】 550円/月
【間取り】 3LDK(洋6.1 6 4.6 LDK13.6)
【専有面積】 壁芯 67.21㎡ バルコニー 8.70㎡
【建物構造】 SRC造10階建/3階部分
【築年月】 1995年4月
【現況】 空き家
🏠設備🏠
オートバス/追焚機能/浴室暖房乾燥機/温水洗浄便座/シャワー付洗面化粧台/3口ガスコンロ/カウンターキッチン/システムキッチン/グリル/浄水器/全居室収納/クローゼット/照明器具/室内洗濯機置場/給湯/都市ガス/全室フローリング/CATV/オートロック/モニター付インターホン/防犯カメラ/火災報知器/エレベーター
☆☆☆☆☆☆☆☆☆☆☆☆☆☆☆☆☆☆☆☆☆☆☆☆☆☆☆☆☆☆☆☆☆☆☆☆☆☆☆☆☆☆☆☆
住吉不動産株式会社では、
売却不動産の募集及び不動産の買取り・賃貸物件管理・空家管理を行っております‼️😊
空き家、空き地、居住中戸建、駐車場、マンション、アパート等不動産であれば何でもOKです❗
査定は無料で行えますのでお気軽にご相談ください‼️😊
長崎県内に限らず、県外の不動産の売却相談も受け付けております!!
県外のご実家又はご所有されている不動産の売却をお考えなど、ございましたらお気軽にご相談ください。
住吉不動産株式会社
〒852-8154
長崎県長崎市住吉町5番3号1階
TEL : 095-807-6835
FAX : 095-807-2339
メール : info@sumiyoshiestate.com
ホームページ : https://sumiyoshiestate.com
※長崎市浜口町のデジタルサイネージにて広告主募集中!!(^^)/
年契約、月々22,000円~
お気軽にお問い合わせください。
2026/01/28 21:18
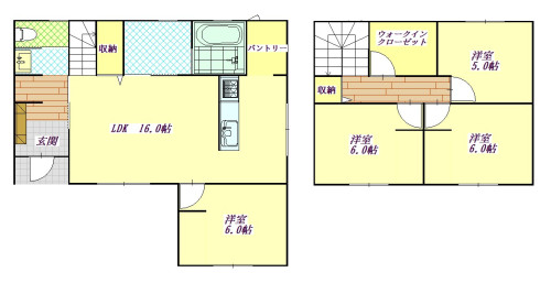
🏠新築建売住宅🏠長崎県西彼杵郡時津町野田郷で建売住宅の販売を開始致しました。(^^♪
🏠新築建売住宅🏠
長崎県西彼杵郡時津町野田郷で建売住宅の販売を開始致しました。(^^♪
3台分の駐車スペースあり!!
隣接した土地の販売も行っておりますので、建売住宅を購入されるも良し、理想の間取りを検討することも可能です。
内覧予約随時受付中!!
🏠物件情報🏠
【物件種別】 新築売戸建住宅
【所 在】 長崎県西彼杵郡時津町野田郷
【交 通】 「野田」バス停 徒歩10分
【価 格】 3,400万円(税込)
【土地面積】 公簿 147.54㎡(約44.63坪)
【建物面積】 99.9㎡
【間取り】 4LDK(洋6・6・6・5 LDK16)
【築年月】 2025年11月
【都市計画】 市街化区域
【用途地域】 1種低層
【地 目】 宅地
【建蔽率】 50%
【容積率】 80%
【引渡し】 即時
🏠設備🏠
オール電化/24時間換気システム/追焚機能/浴室暖房乾燥機/温水洗浄便座/シャワー付洗面化粧台/3口コンロ/IHクッキングヒーター/カウンターキッチン/システムキッチン/グリル/食器洗浄乾燥機/床下収納/室内物干し/複層ガラス/全居室フローリング/クッションフロア/電気/上水道/下水道/EV充電設備/エアコン/ダブルドアロック/モニタ付インターホン/ディンプルキー/シャッター付雨戸/火災警報器/庭10坪以上/駐車場3台分
玄関(閉)
玄関(開)
玄関・シューズBOX
リビング
キッチン
キッチン②
キッチン③
システムバス
洗面台
室内物干し
パントリー
階段・収納
洋室①
収納①
洋室②
収納②ウォークインクローゼット
洋室③
収納③
トイレ
駐車スペース
☆☆☆☆☆☆☆☆☆☆☆☆☆☆☆☆☆☆☆☆☆☆☆☆☆☆☆☆☆☆☆☆☆☆☆☆☆☆☆☆☆☆☆☆
住吉不動産株式会社では、
売却不動産の募集及び不動産の買取り・賃貸物件管理・空家管理を行っております‼️😊
空き家、空き地、居住中戸建、駐車場、マンション、アパート等不動産であれば何でもOKです❗
査定は無料で行えますのでお気軽にご相談ください‼️😊
長崎県内に限らず、県外の不動産の売却相談も受け付けております!!
県外のご実家又はご所有されている不動産の売却をお考えなど、ございましたらお気軽にご相談ください。
住吉不動産株式会社
〒852-8154
長崎県長崎市住吉町5番3号1階
TEL : 095-807-6835
FAX : 095-807-2339
メール : info@sumiyoshiestate.com
ホームページ : https://sumiyoshiestate.com
※長崎市浜口町のデジタルサイネージにて広告主募集中!!(^^)/
年契約、月々22,000円~
お気軽にお問い合わせください。
2026/01/28 20:37
🏠売り土地情報🏠長崎県長崎市花丘町にて土地の販売を開始いたしました。
🏠売り土地情報🏠
長崎県長崎市花丘町にて土地の販売を開始いたしました!!
現状、駐車場として使用されておりますが、バス通りからも近く商業施設、学校、病院、金融機関など徒歩圏内の立地ということもあり新築用地としても、アパート用地としてもおススメのです。
🏠物件情報🏠
【物件種別】 売地
【所 在】 長崎県長崎市花丘町
【交 通】 「西浦上中学校前」バス停 徒歩4分
長崎電気本線 「昭和町通」電停 徒歩7分
JR長崎本線 「西浦上」駅 徒歩11分
【価 格】 2,200万円 (50万円/坪)
【土地面積】 公簿 145.45㎡(約43.99坪)
【土地権利】 所有権
【都市計画】 市街化区域
【用途地域】 1種住居
【建蔽率】 60%
【容積率】 300
【地目】 宅地
☆☆☆☆☆☆☆☆☆☆☆☆☆☆☆☆☆☆☆☆☆☆☆☆☆☆☆☆☆☆☆☆☆☆☆☆☆☆☆☆☆☆☆☆
住吉不動産株式会社では、
売却不動産の募集及び不動産の買取り・賃貸物件管理・空家管理を行っております‼️😊
空き家、空き地、居住中戸建、駐車場、マンション、アパート等不動産であれば何でもOKです❗
査定は無料で行えますのでお気軽にご相談ください‼️😊
長崎県内に限らず、県外の不動産の売却相談も受け付けております!!
県外のご実家又はご所有されている不動産の売却をお考えなど、ございましたらお気軽にご相談ください。
住吉不動産株式会社
〒852-8154
長崎県長崎市住吉町5番3号1階
TEL : 095-807-6835
FAX : 095-807-2339
メール : info@sumiyoshiestate.com
ホームページ : https://sumiyoshiestate.com
※長崎市浜口町のデジタルサイネージにて広告主募集中!!(^^)/
年契約、月々22,000円~
お気軽にお問い合わせください。








































































